Офис для сильных

Офис для сильных


Населенный пунктТюмень
Улицаулица Малыгина
Номер дома90
Описание

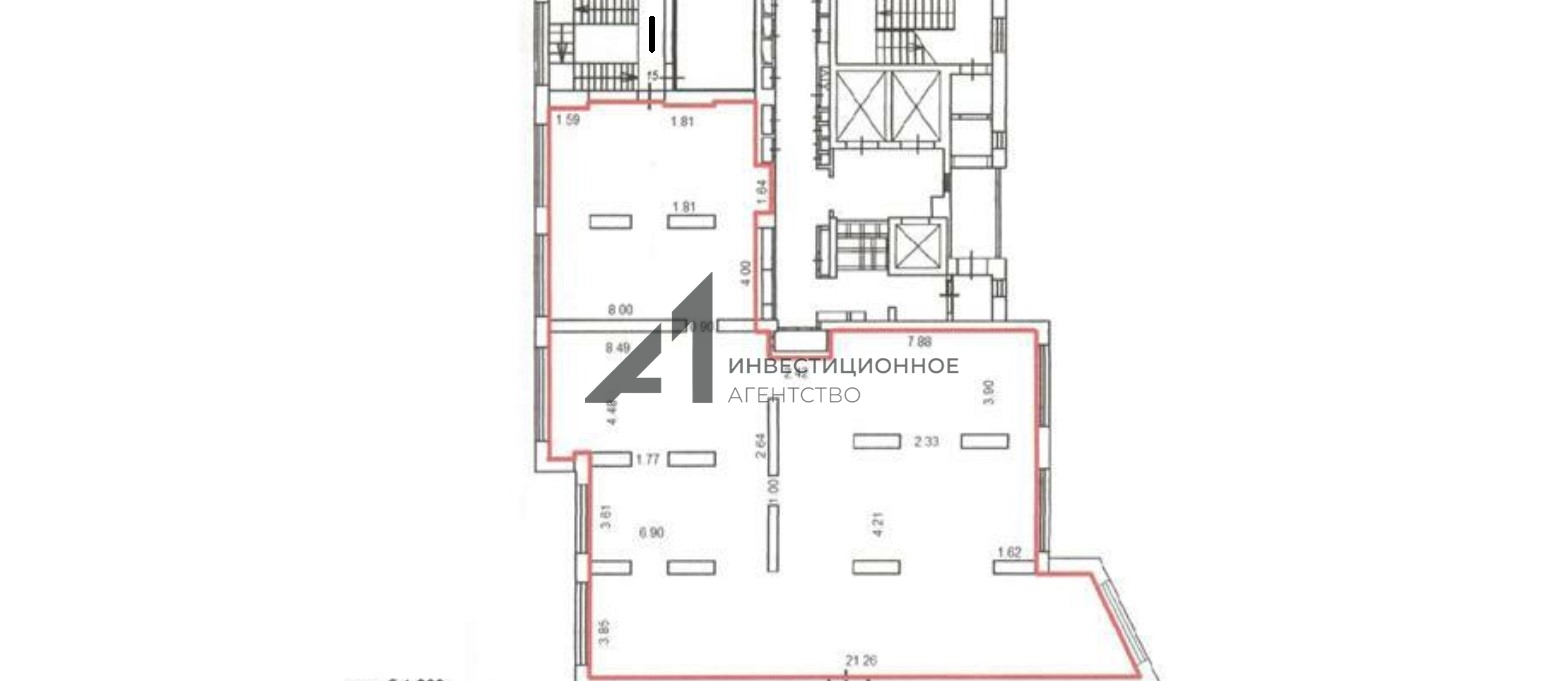
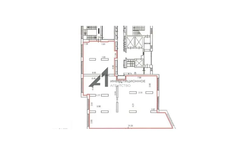
Продается офисное помещение в элитном ЖК "Паруса" общей площадью 293 кв.м.

Без комиссии для покупателя

Основные характеристики и преимущества:
- офис располагается в центре деловой активности города с видом на дворец бракосочетаний;
- помещение имеет отдельный вход;
- входная группа выходит на остановку общественного транспорта;
- товарное соседство с ТЦ "Премьер";
- в помещении два входа;
- высота потолков 3,5 метра;
- эл. мощность 30 кВт;
- на данный момент в помещении три арендатора.
 

Подпишитесь на наш аккаунт на Авито, чтобы быть в курсе скидок и акций
Возможно, вы искали:

Готовый арендный бизнес, ГАБ, ПСН, помещения свободного назначения, коммерческая недвижимость, коммерческое помещение, торговая недвижимость, продажа нежилого помещения, купить торговую площадь, помещение под торговлю, купить коммерческую недвижимость в Тюмени, продажа коммерческой недвижимости в Тюмени, купить нежилое помещение в Тюмени, инвестиции в недвижимость, вложения в недвижимость, ипотека на коммерческую недвижимость

Продажа готового арендного бизнеса, продажа коммерческой недвижимости и помещений свободного назначения: как выгодно продать и инвестировать.
Узнайте, как правильно продать коммерческое помещение или торговую недвижимость, включая нежилые помещения в Тюмени. Получите советы по продаже и вложению в объекты недвижимости, чтобы максимизировать прибыль. Оценка инвестиционных возможностей и использование ипотеки для эффективных финансовых решений при продаже объектов недвижимости.

______________

Инвестиционное агентство "Главная улица"

Сведения о недвижимости
ID 4734
Тип здания Жилой дом
Тип парковки На улице
Отделка помещения коммерческая Офисная
Тип коммерческой Офисное помещение
Площадь, кв.м. 292.5
Этаж 2
Этажность 25
Стоимость 35 000 000 руб.
Вся недвижимость
Стоимость - 35 000 000 руб.
Цена кв.м. - 119 658 руб.