Офис кабинетного типа 360 кв.м.
| Населенный пункт | Тюмень |
|---|---|
| Район города | Центральный |
| Улица | улица Новаторов |
| Номер дома | 12а к1 |
Описание
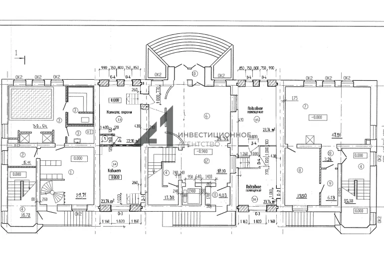
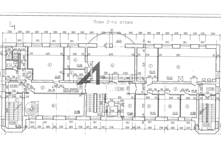
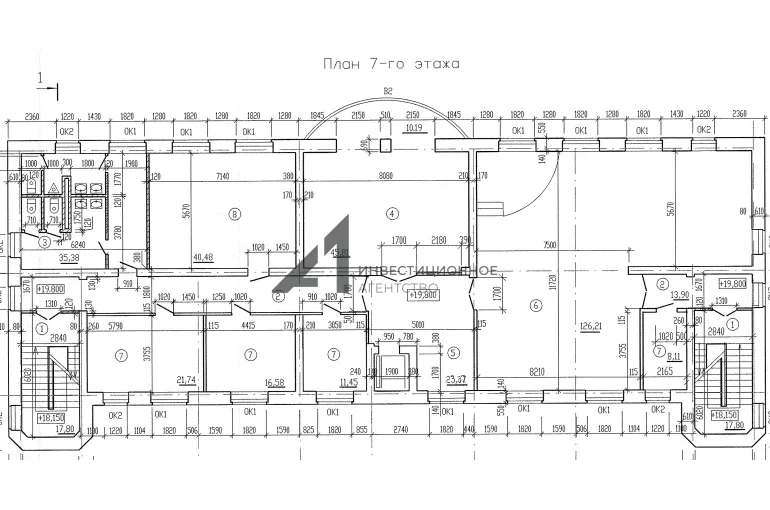
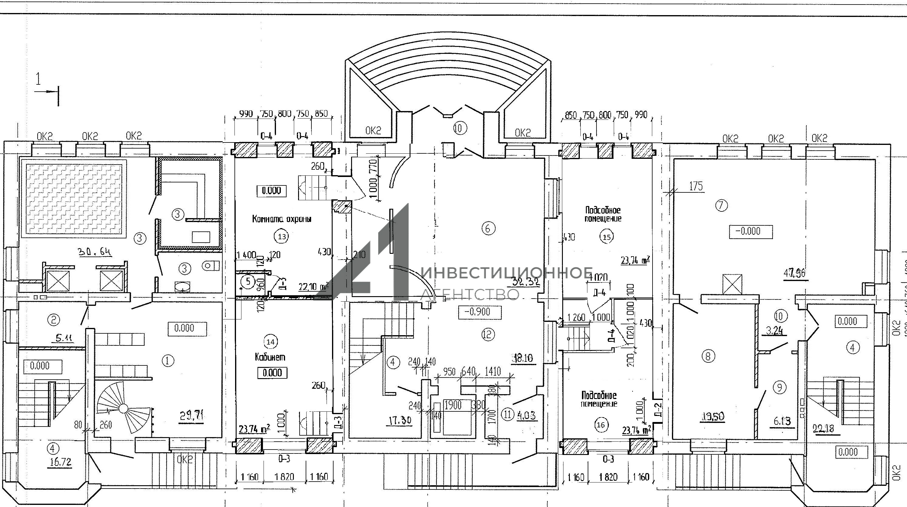
ПОЭТАЖНО СДАЮТСЯ ОФИСЫ В ОФИСНОМ ЗДАНИИ от 360 кв.м. по адресу ул. Новаторов,12А к.1
Без комиссии для арендатора
Основные характеристики и преимущества:
- Поэтажно сдаются офисы в офисном здании от 360 кв.м., также сдается несколько этажей;
- удобное расположение здания на пересечении улиц Республики и Новаторов, въезд со стороны Монтажников;
- рядом строится крупный ЖК "Новатор";
- наличие наземной парковки на 25 машиномест;
- близость остановок общественного транспорта;
- СКУД (система контроля и управления доступом), комната для охраны, серверная;
- кабинетная планировка, конференц-зал, помещения под столовую и зону отдыха;
- лифт, лестничные пролеты с двух сторон;
- новые кондиционеры в каждом кабинете, сделан косметический ремонт, заменены окна и двери;
- своя газовая котельная;
- система охранно-пожарной сигнализации, противопожарные двери;
- мощность 100 кВт на все здание;
- общая площадь здания 1-7 этаж для сдачи 2754,71 кв.м. ( поэтажно: площадь 1 этажа 272,33 кв.м.; 2 этажа 308,33 кв.м.; 3 этажа 358,61кв.м.; 4 этажа 357,89кв.м.; 5 этажа 360,75 кв.м.; 6 этажа 361,91кв.м.; 7 этаж 357,77 кв.м.);
- арендная ставка 1200 руб. кв.м. в т.ч. НДС и эксплуатационные услуги. Арендатор дополнительно оплачивает коммунальные услуги (э/э, водоснабжение, водоотведение).
Ждем Ваших обращений, для уточнения оставшихся вопросов.
С удовольствием и знанием дела поможем Вам в подборе помещений!
Подписывайтесь на наш аккаунт и получайте новости о новых объектах и изменении цен!
Готовый арендный бизнес, ГАБ, ПСН, помещения свободного назначения, коммерческая недвижимость, коммерческое помещение, торговая недвижимость, продажа нежилого помещения, купить торговую площадь, помещение под торговлю, купить коммерческую недвижимость в Тюмени, продажа коммерческой недвижимости в Тюмени, купить нежилое помещение в Тюмени, инвестиции в недвижимость, вложения в недвижимость, ипотека на коммерческую недвижимость
Продажа готового арендного бизнеса, продажа коммерческой недвижимости и помещений свободного назначения: как выгодно продать и инвестировать.
Узнайте, как правильно продать коммерческое помещение или торговую недвижимость, включая нежилые помещения в Тюмени. Получите советы по продаже и вложению в объекты недвижимости, чтобы максимизировать прибыль. Оценка инвестиционных возможностей и использование ипотеки для эффективных финансовых решений при продаже объектов недвижимости.
_______________________________________
Инвестиционное агентство "Главная Улица"
| Сведения о недвижимости | |
|---|---|
| ID | 6207 |
| Коммунальные услуги включены | Нет |
| Возможное назначение | Офис |
| Тип здания | отдельно стоящее здание |
| Тип парковки | На улице |
| Отделка помещения коммерческая | Офисная |
| Удаленность от дороги (авито) | Первая линия |
| Этаж дополнительно (авито) | Несколько этажей |
| Мощность электросети, в кВт | 100 |
| Виды отопления avito | Центральное |
| Тип коммерческой | Офисное помещение |
| Площадь, кв.м. | 360 |
| Этаж | 5 |
| Этажность | 9 |
| Стоимость | 432 000 руб. |

































