В центре на Мельникайте
| Населенный пункт | Тюмень |
|---|---|
| Улица | улица Мельникайте |
| Номер дома | 100 |
Описание
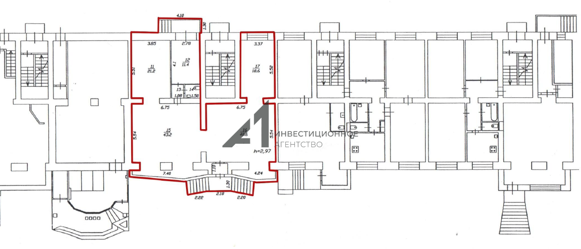
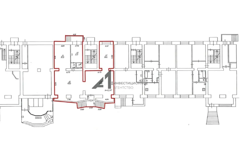
Предлагаем к покупке помещение в центре города на ул. Мельникайте.
Без комиссии для покупателя
Основные характеристики и преимущества:
- отличная локация - самый центр города, рядом с перекрестком Республики-Мельникайте;
- зона деловой активности, отличный пешеходный и автомобильный трафик;
- первый этаж, отдельная входная группа;
- общая площадь 138,3 кв.м;
- электрическая мощность 44 кВт;
- помещение в данной локации никогда не будет долго простаивать без арендатора;
Для разъяснения остальных вопросов ждем Вашего звонка. До встречи на показе.
Подписывайтесь на наш аккаунт и получайте новости о новых объектах и изменении цен!
Возможно, вы искали:
Готовый арендный бизнес, ГАБ, ПСН, помещения свободного назначения, коммерческая недвижимость, коммерческое помещение, торговая недвижимость, продажа нежилого помещения, купить торговую площадь, помещение под торговлю, купить коммерческую недвижимость в Тюмени, продажа коммерческой недвижимости в Тюмени, купить нежилое помещение в Тюмени, инвестиции в недвижимость, вложения в недвижимость, ипотека на коммерческую недвижимость
Продажа готового арендного бизнеса, продажа коммерческой недвижимости и помещений свободного назначения: как выгодно продать и инвестировать.
Узнайте, как правильно продать коммерческое помещение или торговую недвижимость, включая нежилые помещения в Тюмени. Получите советы по продаже и вложению в объекты недвижимости, чтобы максимизировать прибыль. Оценка инвестиционных возможностей и использование ипотеки для эффективных финансовых решений при продаже объектов недвижимости.
_______________________________________
Инвестиционное агентство "Главная улица"
| Сведения о недвижимости | |
|---|---|
| ID | 4454 |
| Тип здания | Жилой дом |
| Тип парковки | На улице |
| Отделка помещения коммерческая | Офисная |
| Тип коммерческой | Готовый бизнес |
| Площадь, кв.м. | 138.3 |
| Этаж | 1 |
| Этажность | 4 |
| Стоимость | 42 000 000 руб. |








